Thông tin tổng quan mặt bằng The Beverly Vinhomes Grand Park
Phân khu The Beverly Vinhomes Grand Park sở hữu vị trí trái tim công viên với tầm nhìn độc đáo, bao quát toàn bộ công viên Ánh Sáng rộng 36ha.
Mặt bằng The Beverly được quy hoạch thành 10 tòa căn hộ nằm trong 2 cụm The Star và The Resort với mặt tiền dài 400m nằm đối diện công viên Ánh Sáng, được bàn giao theo tiêu chuẩn cao cấp. Các tòa có chiều cao từ 22 – 34 tầng, tầng 1-2 dùng để phát triển nhà phố thương mại và từ tầng 3 trở lên là căn hộ cao cấp.
Tất cả các tòa đều có mặt bằng sàn được thiết kế theo layout dạng chữ Z độc đáo. Do đó, tất cả căn hộ đều có mặt thoáng lớn, tối ưu nguồn sáng. Mật độ xây dựng tại mỗi mặt sàn của tòa nhà khá thấp, bao gồm 15, 16 hoặc 20 căn hộ.
Bên cạnh đó, mỗi tòa còn được chủ đầu tư trang bị 1 thang máy vận chuyển đồ nặng, 2 thang thoát hiểm phòng trường hợp xảy ra rủi ro và 6 thang máy phục vụ quá trình di chuyển đi lại hằng ngày. Tỷ lệ thang máy là 1 thang máy/2.5 căn hộ. Đây là tỷ lệ đạt chuẩn của căn hộ cao cấp.
Mặt bằng tầng điển hình căn hộ The Beverly
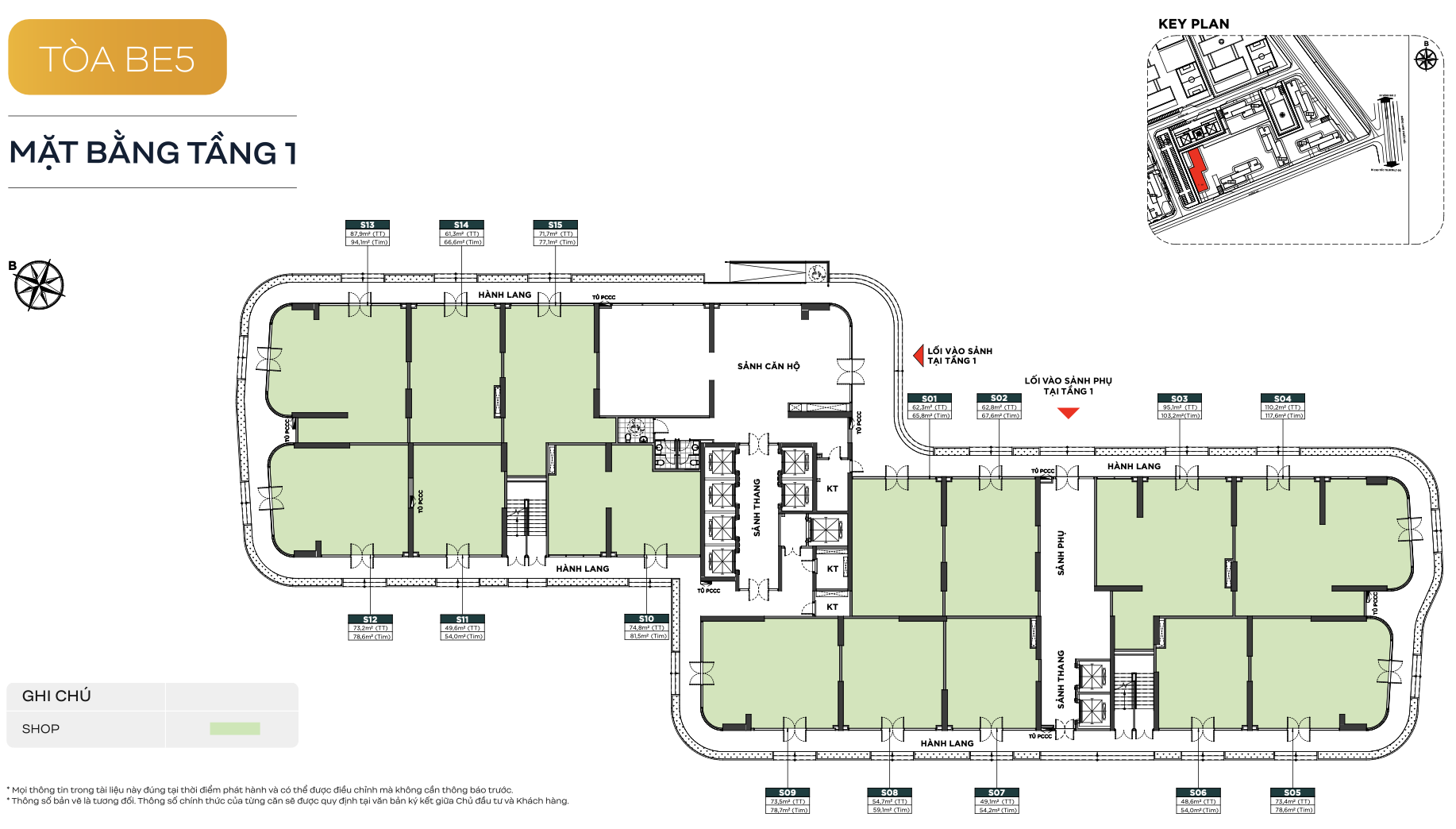
Mặt bằng thiết kế tòa BE5 The Beverly
Mật độ xây dựng của tòa BE5 là 15 căn/sàn với đầy đủ các loại hình căn hộ từ studio đến 3 phòng ngủ. Tất cả căn hộ đều có hướng view chính hướng về công viên 36ha hồ nước mặn và phân khu The Star.

Mọi thông tin về loại căn hộ này anh chị vui lòng liên hệ :
Phòng kinh doanh Vinhomessaigon.vn
HOTLINE PHÒNG KINH DOANH: 0941.792.923
Địa chỉ: 161 Xa lộ Hà Nội, Phường Thảo Điền, Quận 2, TP.HCM
Email: bdsvinhcm@gmail.com
Website: https://vinhomessaigon.vn/
