Tài liệu căn hộ
Tổng hợp tài liệu về thiết kế, mặt bằng tầng, mặt bằng phân khu của dự án Vinhomes Sài Gòn.
Mặt bằng dự án Glory Heights Vinhomes Grand Park
Glory Heights Vinhomes Grand Park có mặt bằng triển khai xây dựng tổng diện tích...
Mặt bằng tòa BS10 The Beverly Solari – Vinhomes Grand Park
Tòa BS10 The Beverly Solari thuộc tiểu khu The Tropical, là một trong số ít...
Mặt bằng tòa BS09 The Beverly Solari Vinhomes Grand Park
Mặt bằng tòa BS9 The Beverly Solari được thiết kế theo hình chữ T. Tòa...
Mặt bằng tòa BS08 The Beverly Solari Vinhomes Grand Park
Mặt bằng tòa BS8 The Beverly Solari được thiết kế theo hình chữ U. Tòa...
Mặt bằng tòa BS07 The Beverly Solari Vinhomes Grand Park
Tòa BS7 The Beverly Solari nằm tại tiểu khu The Tropical, là một trong những...
Căn hộ 3 phòng ngủ The Beverly – Vinhomes Grand Park
Vị trí phân khu căn hộ cao cấp Beverly Vinhomes Grand Park Phân khu căn...
Căn hộ 2 phòng ngủ The Beverly Vinhomes Grand Park
Vị trí phân khu căn hộ cao cấp Beverly Vinhomes Grand Park Phân khu căn...
Căn hộ 1 phòng ngủ The Beverly Vinhomes Grand Park
Vị trí phân khu căn hộ cao cấp Beverly Vinhomes Grand Park Phân khu căn...
Căn hộ Studio The Beverly – Vinhomes Grand Park
Vị trí phân khu căn hộ cao cấp Beverly Vinhomes Grand Park Phân khu căn...
Mặt bằng tòa BE3 The Beverly Vinhomes Grand Park
Thông tin tổng quan mặt bằng The Beverly Vinhomes Grand Park Phân khu The Beverly...
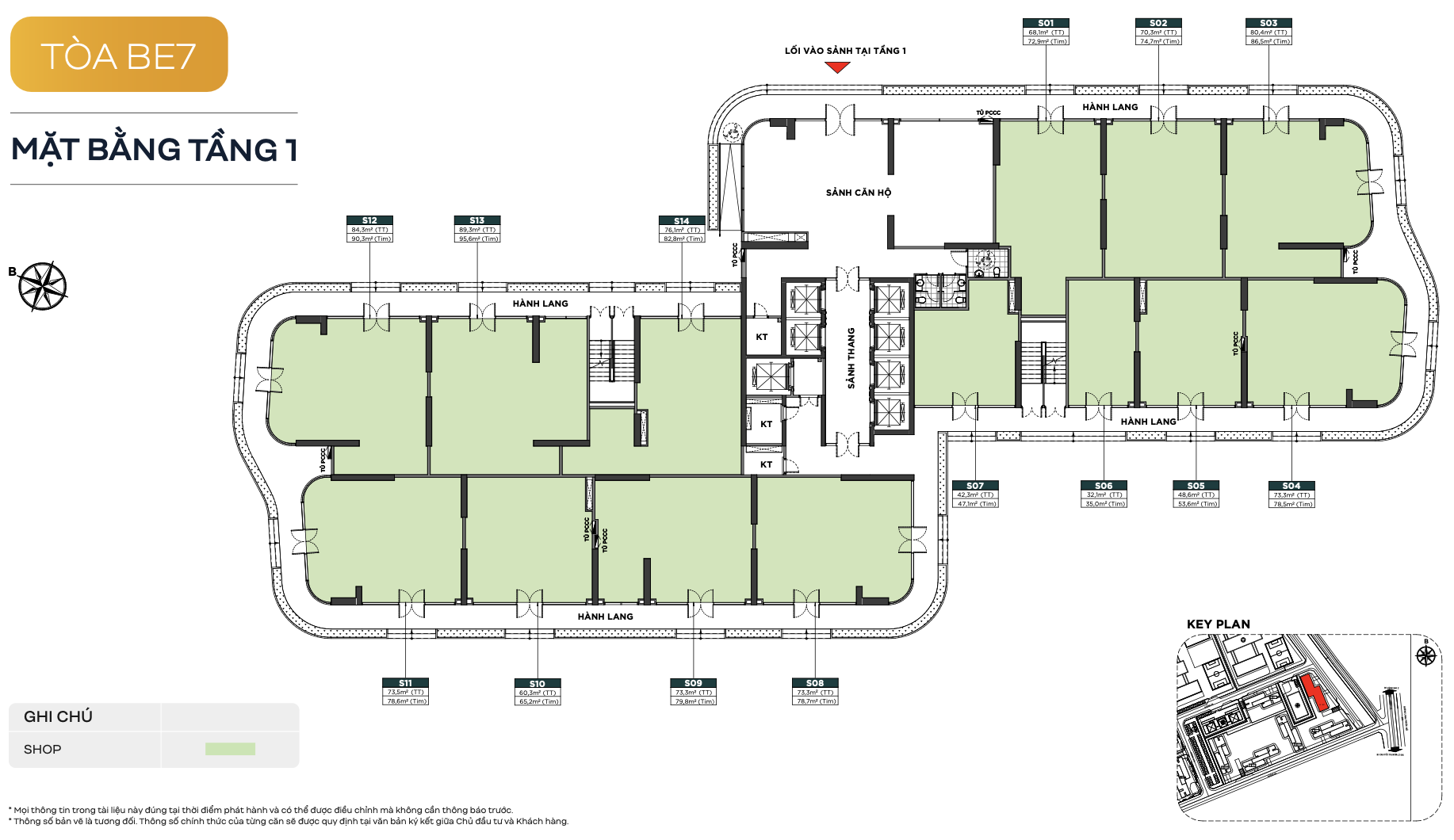
Mặt bằng tòa BE7 The Beverly Vinhomes Grand Park
Thông tin tổng quan mặt bằng The Beverly Vinhomes Grand Park Phân khu The Beverly...
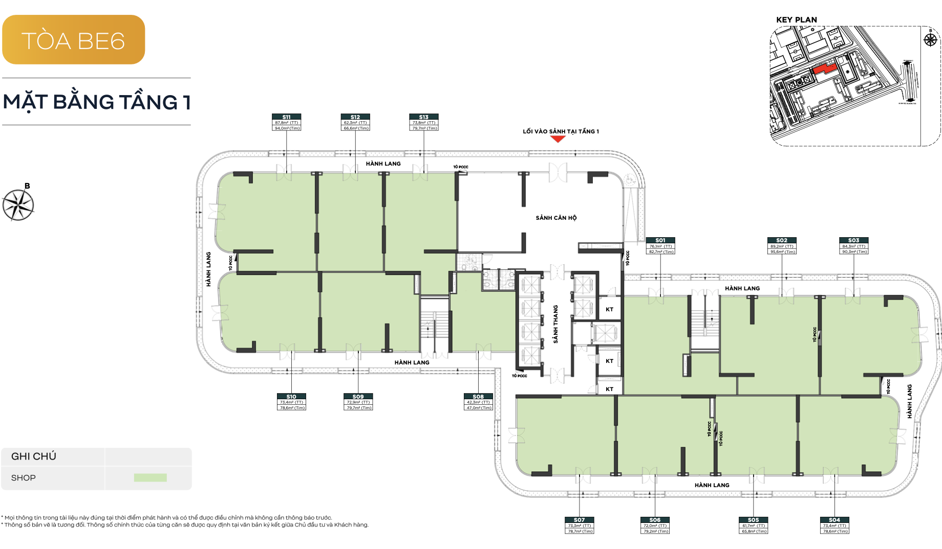
Mặt bằng tòa BE6 The Beverly Vinhomes Grand Park
Thông tin tổng quan mặt bằng The Beverly Vinhomes Grand Park Phân khu The Beverly...
