Tài liệu căn hộ
Tổng hợp tài liệu về thiết kế, mặt bằng tầng, mặt bằng phân khu của dự án Vinhomes Sài Gòn.
Mặt bằng tòa BE5 The Beverly Vinhomes Grand Park
Thông tin tổng quan mặt bằng The Beverly Vinhomes Grand Park Phân khu The Beverly...
Mặt bằng tòa BE2 The Beverly Vinhomes Grand Park
Thông tin tổng quan mặt bằng The Beverly Vinhomes Grand Park Phân khu The Beverly...
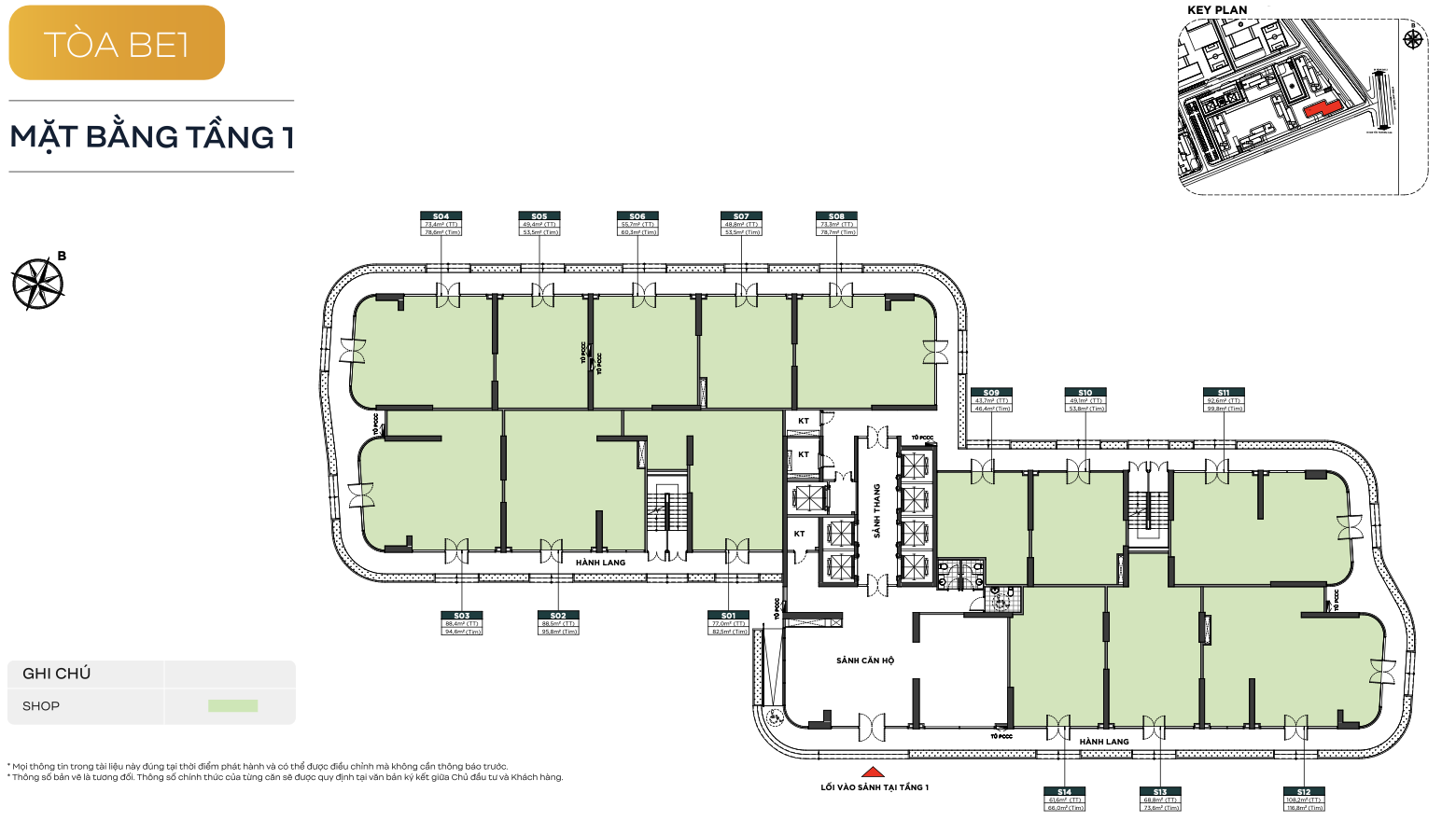
Mặt bằng tòa BE1 The Beverly Vinhomes Grand Park
Thông tin tổng quan mặt bằng The Beverly Vinhomes Grand Park Phân khu The Beverly...
Thiết kế căn hộ 2 phòng ngủ The Origami – Vinhomes Grand Park
Các căn hộ 2 phòng ngủ Vinhomes Grand Park được thiết kế theo không gian...
Thiết kế căn hộ 3 phòng ngủ The Origami – Vinhomes Grand Park
Loại hình căn hộ 3 phòng ngủ Vinhomes Grand Park thuộc dự án Vinhomes Grand...
Thiết kế căn hộ 2 Phòng Ngủ cộng 1 The Origami Vinhomes Grand Park
Căn hộ 2 phòng ngủ +1 là loại hình căn hộ được Vingroup đưa vào...
Thiết kế căn hộ 1 Phòng Ngủ+1 The Origami – Vinhomes Grand Park
Căn hộ 1 phòng ngủ +1 là loại hình căn hộ được Vingroup đưa vào trong...
Thiết kế căn hộ 1 Phòng Ngủ The Origami – Vinhomes Grand Park
The Origami là phân khu căn hộ thứ 2 của Thành phố Thông minh –...
Thiết kế căn hộ Studio The Origami – Vinhomes Grand Park
The Origami là phân khu căn hộ thứ 2 của Thành phố Thông minh –...
MẶT BẰNG TÒA S10.07 THE ORIGAMI – VINHOMES GRAND PARK
THÔNG TIN TÒA S10.07 TỔNG QUAN TÒA CĂN HỘ S10.07 – VINHOMES GRAND PARK Tòa...
MẶT BẰNG TÒA S10.06 THE ORIGAMI – VINHOMES GRAND PARK
THÔNG TIN TÒA S10.06 TỔNG QUAN TÒA CĂN HỘ S10.06 – VINHOMES GRAND PARK Các...
MẶT BẰNG TÒA S10.05 THE ORIGAMI – VINHOMES GRAND PARK
THÔNG TIN TÒA S10.05 TỔNG QUAN TÒA CĂN HỘ S10.05 – VINHOMES GRAND PARK Phân...
