THÔNG TIN TÒA S902
TỔNG QUAN TÒA CĂN HỘ S902 – VINHOMES GRAND PARK
Tòa S9.02 Vinhomes Grand Park thuộc cụm tòa S9, là khu căn hộ được ra mắt đầu tiên trong phân khu. Thừa hưởng những giá trị tinh hoa từ The Origami, S9.02 mang những nét đặc trưng nổi bật của xứ sở Hoa anh đào, mở ra không gian sống trọn vẹn, pha trộn giữa nhịp sống năng động của khu đô thị và nét an nhiên của xứ Phù Tang.
Thông tin tổng quan về tòa S902 Vinhomes Grand Park, như sau:
- Tên tòa nhà: S9.02 Vinhomes Grand Park
- Chiều cao tòa nhà: 30 tầng nổi
- Sản phẩm phát triển: nhà phố thương mại và căn hộ
- Mật độ xây dựng tòa nhà: 30 căn/sàn
- Số lượng thang máy: 2 thang bộ và 8 thang máy
- Các loại hình căn hộ: studio, 1PN – 3PN
- Layout thiết kế mặt bằng: chữ U
- Số lượng căn hộ: 834 căn
- Diện tích căn hộ trung bình: từ 30m2 – 92.5m2
Vị trí tòa S902 Vinhomes Grand Park
Cụm tòa S9 của phân khu The Origami là phân khu căn hộ đầu tiên được chủ đầu tư Vinhomes cho ra mắt. Tiểu khu S9 bao gồm 3 tòa căn hộ S9.01, S9.02 và S9.03.
Tòa S9.02 tọa lạc trong phân khu The Origami Vinhomes Grand Park. Tiếp giáp trực tiếp với đường Anh Đào 1, gần nút giao giữa đường Anh Đào 1 và đường Phước Thiện, cư dân tại đây có thể dễ dàng trong quá trình kết nối đến các địa điểm nội khu. Bên cạnh đó, tòa nhà còn nằm đối diện với khu trường học, do đó, cư dân nhí sẽ có nhiều thuận lợi khi đi học hằng ngày.
Ngoài ra, tòa nhà cũng được thừa hưởng vị trí đắt giá từ dự án Vinhomes Grand Park. Đây là nơi có hệ thống giao thông hoàn hảo, quy tụ nhiều con đường quan trọng của thành phố như Vành Đai 2, Vành Đai 3, đường Phước Thiện, cao tốc Long Thành – Dầu Giây, tuyến metro số 1 Bến Thành – Suối Tiên.

Vị trí tòa S902 Vinhomes Grand Park thuộc phân khu The Origami
Vị trí cụ thể của tòa S902 The Origami như sau:
- Hướng Đông Bắc: Giáp với tòa S9.03 và hồ bơi nội khu
- Hướng Đông Nam: Giáp với bãi giữ xe
- Hướng Tây Nam: Giáp với tòa S9.01
- Hướng Tây Bắc: Giáp với trường học quốc tế Vinschool
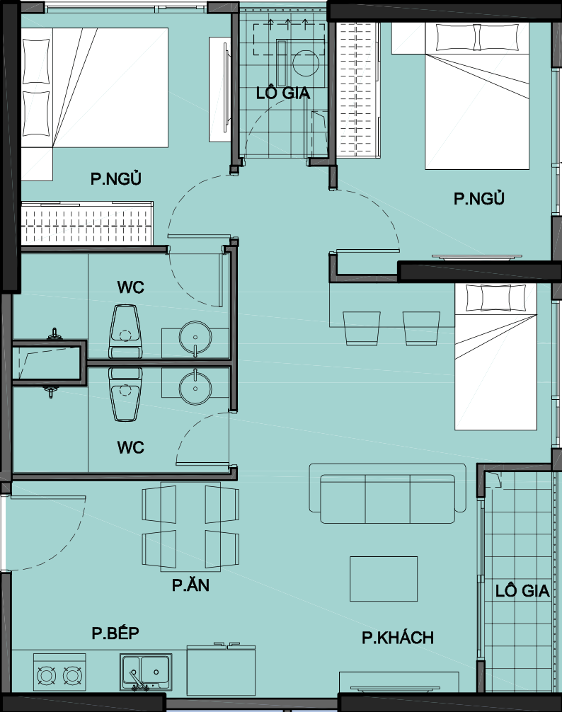
Mặt bằng tòa S902 Vinhomes Grand Park

Mọi thông tin về loại căn hộ này anh chị vui lòng liên hệ :
Phòng kinh doanh Vinhomessaigon.vn
HOTLINE PHÒNG KINH DOANH: 0941.792.923
Địa chỉ: 161 Xa lộ Hà Nội, Phường Thảo Điền, Quận 2, TP.HCM
Email: bdsvinhcm@gmail.com
Website: https://vinhomessaigon.vn/






